多個陽臺+陽光房的設計,漂亮時尚又溫馨十足
作者:admin 來源:互聯網 發布時間: 2021/1/13 10:25:05 瀏覽:
陽光房不僅是晾曬衣被的好場地,仔細裝扮一下作為休閑花園也十分漂亮、
現在的人生活水平高了,蓋房的要求自然也提高了。都很講究細節,希望自家房子別具一格又漂亮時尚。

今天給大家推薦一套既端莊又大氣的三層歐式農村別墅,多窗多陽臺,造型別致,符合大多數人的審美!

別墅底層選用文化石,墻體選用米色真石漆,搭配上藍色波形瓦片,自然過渡,不僅高端大氣,日常也十分清新亮眼。
正立面的凸出陽臺讓整棟別墅更具立體感,搭配鐵藝欄桿,更加豪華大氣。布局合理,居住空間舒適。

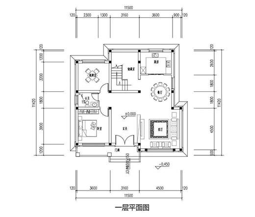
圖紙編號:CS169
開間:11.5米
進深:11.4米
占地面積:131平方米
建筑面積:408平方米
建筑結構:框架結構
簡裝造價:55萬左右

一層主要作為日常活動區域,室內布局合理清晰,進門就是玄關、客廳和餐廳,顯得十分寬敞,一層只設置了一個臥室,可以保證其它功能區的面積,使得日常家居生活便捷舒適。

二層以居住為主,設3間臥室和起居室,其中一間帶衣帽間、獨立衛生間和陽臺,可做主臥套房使用。

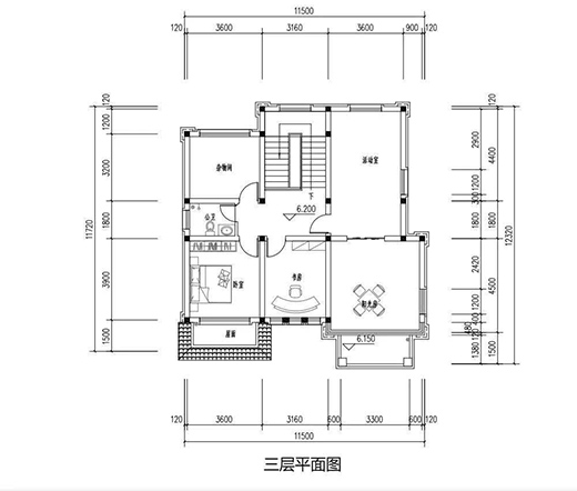
三層設有一間臥室、書房、雜物室、活動室和陽光房,臥室可作為客房區域,有客人來拜訪需要過夜的額也有地方住。陽光房不僅是晾曬衣被的好場地,仔細裝扮一下作為休閑花園也十分漂亮、
相關閱讀
- 帶你設計一款功能多變,簡單實用的休閑露臺陽光房 - 2021/12/30
- 移動陽光房:外觀精美又可遮雨抗風 - 2021/12/25
- 搭建移動陽光房,靜享午后溫暖陽光,陽光房與大自然的完美搭配 - 2021/12/21
- 庭院里種的花最怕風吹雨打?搭建一個移動陽光房為小花朵守護美好 - 2021/12/18
- 無懼寒冬,只因擁有一扇陽光房! - 2021/12/15
- 陽光房這樣設計,舒服漂亮! - 2021/12/11
品牌資訊MORE
- 愛華仕斬獲“2021年度中國廚衛行業年度智能
- 回首2021,迎戰2022 彩虹線開啟新征程!
- 福臨板材|福滿2021,圓夢2022
- 美特照明:2022年照明新趨勢,經銷商如何做大
- 會自己“洗澡”的集成灶,帥康自動清洗集成灶
- 帶你設計一款功能多變,簡單實用的休閑露臺陽
- 世紀豪門吊頂:破防了!原來顏值+實力=H20
- 裝修木門選的好,噪音統統沒煩惱
- 寒潮來了,有淋浴房洗澡更保暖舒服
- 元旦特輯:歐意電器述說生活的點滴與美好
- “中國十大品牌”獲獎名單出爐,賽戈水漆榮耀
- 2021值得消費大賞 凱迪仕智能鎖榮摘兩項桂冠
- 益恩家居:新年新氣象,愛自己從好好睡覺開始
- 元旦伊始:健康新生活,從精格管道直飲水開始
- 喜迎元旦|新年新燈飾 箔晶智能照明讓酒店暖
- 吉美幫的2021 “專精特新” 深耕屋面防水體
- Aqara攜手京東成立燈光設計聯盟 打造燈飾照
- 年底廚房煥新顏,如何選擇廚電?好太太智能來
- 全鋁家具全屋莫蘭迪色系,這款美式輕奢范贏鄰
- 順趨勢·筑鳳巢·贏未來 鳳梧居門窗2021年會隆






