色彩拼貼——烏蘭浩特市鐵西幼兒園建筑設計
設計背景
新建鐵西幼兒園位于內蒙古自治區烏蘭浩特市,地處城市更新發展中的老城區區塊。烏蘭浩特市是內蒙古自治區興安盟的行政中心,興安盟位于我國東北部地區,毗鄰黑龍江和吉林兩省,具有鮮明的內蒙古和東北省份兩者文化特征。烏蘭浩特市在蒙語中是“紅色之城”的意思,城市位于大興安嶺南麓,科爾沁草原腹地,也兼具了森林與草原兩大地理風貌。
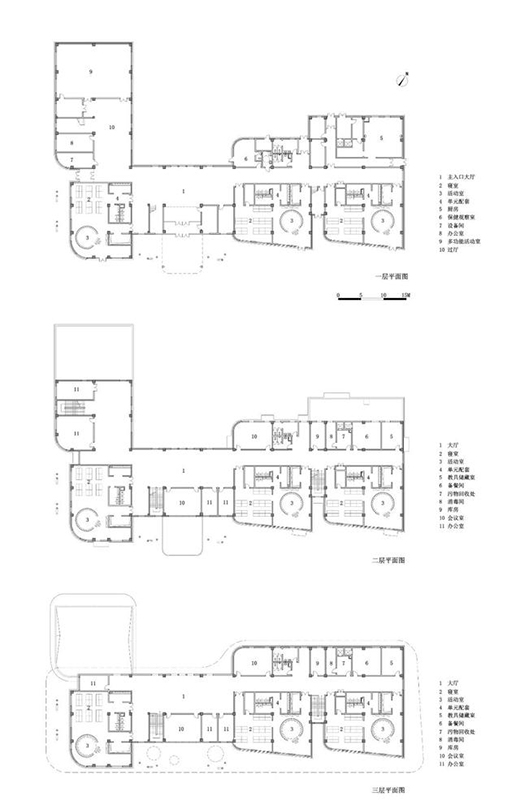
鐵西幼兒園是政府主導建設的9班大中型幼兒園,總用地面積12199平方米,總建筑面積5300平方米。建筑主體層數為三層,包含9個班的活動單元、多功能活動室、餐飲配套、辦公空間等主要功能用房。

建筑遠眺
前期思考
幼兒園是我國的重要保育和基礎教育機構,近些年國內大城市的幼兒園通過不斷的匹配建設,同時具有良好的城市經濟背景和幼兒園經營團隊,已經在城市中形成了較好的分布和一定的建筑規模。而中小城市的幼兒園建設和經營依然并不規范,大多幼兒園并沒有良好的場地和內部空間,私營幼兒園仍然占有主導地位。
本次設計所處的烏蘭浩特市是典型發展中的中小城市代表,同時也是具有鮮明地域文化的北方寒地城市代表。如何在經濟一般中小城市的老城區樹立新的幼兒園范本?如何在北方寒冷地區進行幼兒園單元空間組合?如何挖掘烏蘭浩特自身的城市文脈特征?......
場地布局
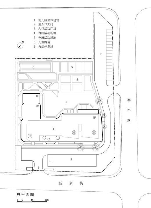
幼兒園基地地處新建城市支路的交叉口,毗鄰兩側道路。建筑布局首先考慮到幼兒園兒童房間的朝向問題,基于現有場地的朝向并非正南北情況,建筑突出對東南和西南兩個方向陽光呼應,形成了L型的總體布局,使得兒童活動單元和多功能活動室最大限度迎合陽光照射。

總平面圖
幼兒園的設計經常以活動單元為模塊,形成多單元組合的序列性布局,特別是在南方的設計項目中,活動單元的布置可以更加分散,也會打造出內院、連廊和平臺等豐富的室內外空間。而本次設計由于場地局限性,同時處于嚴寒地區的氣候區,因此設計更加強調建筑布局的整體性和連貫性。


建筑航拍
建筑生成
首先,建筑空間布局依托主體活動單元需求,兒童活動單元布置朝向東南側主路一側,每層三個活動單元,形成三層的主要體量。多功能活動室朝向西南,迎接采光的同時與主體量形成L型的錯落關系。
其次,建筑的活動單元和多功能活動室的體量朝南向適當扭轉,同時進行局部平面圓形倒角處理,增加兒童房間的采光需求,也進一步活化體量關系。
最后,建筑在屋面增加懸挑的整體屋檐造型,來統一各部分單元體量,強化建筑的整體聯系。水平的屋頂天際線在老城區中與周邊復雜的建筑界面對比,展現了更加清晰的形體關系,屋面在活動單元處進行了圓形天窗設置,豐富了建筑屋面層次。

建筑體量生成

功能區塊分析

建筑平面圖

建筑天際線
色彩拼貼
建筑在宏觀布局以及中觀體量變化之后,在細節層面思考如何進一步體現幼兒園特征和城市肌理延續。建筑的兒童活動單元由于空間較大而立面相對具有靈活性,因此在單元的樓層間采取了錯窗處理,強化建筑立面的靈動性。




建筑細部
隨后設計通過紅黃橙白的色彩引入,通過色彩拼貼的方式,來大膽的活化建筑表皮界面,展現了幼兒園建筑的兒童情趣特色。暖色系的使用符合北方建筑的冬季視覺需求,也是對基地周邊城市建筑色彩的呼應,暖色色彩拼貼使幼兒園建筑既融入烏蘭浩特城市環境,也適當的凸顯了建筑的自身視覺特征。


彩色幼兒園
項目結語
烏蘭浩特鐵西幼兒園是在經濟基礎一般的中小城市中,進行的一次相對低造價的嘗試,因此設計突出建筑空間的集約整合和立面色彩的有效嘗試。最終幼兒園建筑在整體中尋求變化,展現建筑幾個層次的秩序性,希望不要給老城區亂上添亂,在打造自身特色基礎上給老城區添加了活力空間。

建筑街景
項目名稱:烏蘭浩特市鐵西幼兒園
建設單位:烏蘭浩特市教育局
設計單位:哈爾濱工業大學建筑設計研究院
建筑面積:5300平方米
主創團隊:唐家駿、孫權、張波、張波濤、杜婷婷
建筑攝影:唐家駿
-
2021/12/29
-
2021/12/24
-
2021/12/20
- 愛華仕斬獲“2021年度中國廚衛行業年度智能
- 回首2021,迎戰2022 彩虹線開啟新征程!
- 福臨板材|福滿2021,圓夢2022
- 美特照明:2022年照明新趨勢,經銷商如何做大
- 會自己“洗澡”的集成灶,帥康自動清洗集成灶
- 帶你設計一款功能多變,簡單實用的休閑露臺陽
- 世紀豪門吊頂:破防了!原來顏值+實力=H20
- 裝修木門選的好,噪音統統沒煩惱
- 寒潮來了,有淋浴房洗澡更保暖舒服
- 元旦特輯:歐意電器述說生活的點滴與美好
- “中國十大品牌”獲獎名單出爐,賽戈水漆榮耀
- 2021值得消費大賞 凱迪仕智能鎖榮摘兩項桂冠
- 益恩家居:新年新氣象,愛自己從好好睡覺開始
- 元旦伊始:健康新生活,從精格管道直飲水開始
- 喜迎元旦|新年新燈飾 箔晶智能照明讓酒店暖
- 吉美幫的2021 “專精特新” 深耕屋面防水體
- Aqara攜手京東成立燈光設計聯盟 打造燈飾照
- 年底廚房煥新顏,如何選擇廚電?好太太智能來
- 全鋁家具全屋莫蘭迪色系,這款美式輕奢范贏鄰
- 順趨勢·筑鳳巢·贏未來 鳳梧居門窗2021年會隆








